direct naar inhoud van Toelichting
Plan: Verzamelherziening 2023
Status: ontwerp
Plantype: bestemmingsplan
IMRO-idn: NL.IMRO.0606.BP00107-0001

Toelichting

Hoofdstuk 1 Inleiding

1.1 Aanleiding en doelstelling

De gemeente Schiedam stelt periodiek een bestemmingsplan vast dat betrekking heeft op het

verwerken van actuele inzichten en situaties. Dit bestemmingsplan is een verzamelherziening en regelt diverse onderwerpen die hieronder kort worden weergegeven.

Snippergroen

Door ontwikkelingen in het verleden is er veel snippergroen ontstaan. Regelmatig is er vraag van bewoners om deze gronden uit te geven. De nota 'Werkwijze snippergroen' biedt de spelregels waaraan bij de uitgifte van snippergroen moet worden voldaan. Op basis van het snippergroenbeleid is in 2022 en 2023 op verschillende momenten besloten om snippergroen uit te geven aan bewoners. Met dit bestemmingsplan wordt de privaatrechtelijke uitgifte van deze gronden planologisch doorvertaald door de (openbare) groen- of verkeersbestemming te wijzigen naar een woon- of tuinbestemming.

Actualisatie

Recent zijn een aantal omgevingsvergunningen met een afwijking van het bestemmingsplan verleend. Omwille van de rechtszekerheid is er voor gekozen om deze projecten in dit bestemmingsplan op te nemen, zodat de nieuwe bestemmingen expliciet voor burgers duidelijk worden. Dit komt de rechtszekerheid ten goede en sluit aan bij de werkwijze die de gemeente al langer bij de verzamelherzieningen hanteert.

Optimalisaties

In de afgelopen tien jaar zijn er veel bestemmingsplannen vastgesteld. Soms zat daar een omissie of is nadien vastgesteld dat een regel in een plan anders uitwerkt dan beoogd. In deze verzamelherziening worden dergelijke zaken recht gezet.

Waterkeringen

Het Hoogheemraadschap van Delfland heeft in 2022 een nieuwe legger vastgesteld. Deze legger kent afwijkingen ten opzichte van de huidige bestemmingsplannen. De nieuwe legger van het Hoogheemraadschap is daarom integraal opgenomen in deze verzamelherziening.

Uitvaartcentra

Uitvaartcentra kunnen zich vrij vestigen op een locatie waar maatschappelijke voorzieningen zijn toegestaan. Dit kan, gelet op de aard van de bedrijfsactiviteiten, maatschappelijke onrust veroorzaken. Hierdoor is het gewenst om een nadere belangenafweging te kunnen maken indien er een verzoek komt van een uitvaartcentrum om zich te kunnen vestigen. In deze verzamelherziening wordt hiervoor een regeling geformuleerd.

In hoofdstuk 2 wordt dieper ingegaan op de genoemde onderdelen van dit bestemmingsplan.

1.2 Ligging plangebied

Het bestemmingsplan betreft het hele grondgebied van de gemeente Schiedam.

1.3 Geldende bestemmingsplannen

In het plangebied zijn momenteel onderstaande bestemmingsplannen van kracht, welke met dit plan (gedeeltelijk) worden herzien. Het betreft de volgende plannen:

Bestemmingsplan   IMRO-code   Vaststelling raad  
A4 Schiedam   NL.IMRO.0606.BP0014-0001   2 februari 2012  
Binnenstad 2014   NL.IMRO.0606.BP0026-0002   10 juli 2014  
Dirkzwager locatie   NL.IMRO.0606.BP0042-0002   1 oktober 2019  
Groenoord 2015   NL.IMRO.0606.BP0030-0003   15 september 2015  
Harga   NL.IMRO.0606.BP0020-0002   10 juni 2013  
Harga Midden   NL.IMRO.0606.BP0040-0002   19 december 2017  
Harga Zuid 2015   NL.IMRO.0606.BP0035-0002   15 december 2015  
Havens   NL.IMRO.0606.BP0023-0003   15 september 2015  
Havens ,eerste herziening   NL.IMRO.0606.BP0031-0002   28 juni 2016  
Kethel e.o.   NL.IMRO.0606.BP0003-0001   21 april 2011  
Kethelse Venen   NL.IMRO.0606.BP0029-0002   10 juli 2014  
Nieuw Mathenesse   NL.IMRO.0606.BP0024-0002   18 juli 2013  
Nieuw Mathenesse, eerste herziening   NL.IMRO.0606.BP0034-0002   13 september 2016  
Nieuwland 2016   NL.IMRO.0606.BP0038-0003   6 juni 2017  
Oost   NL.IMRO.0606.BP0004-0002   27 oktober 2011  
Park A4   NL.IMRO.0606.BP0032-0002   26 januari 2016  
Parkweg Midden   NL.IMRO.0606.BP00046-0002   9 februari 2021  
Polderwetering   NL.IMRO.0606.BP0016-0002   31 januari 2012  
Schieveste   NL.IMRO.0606.BP0008-0001   2 februari 2012  
Schieveste 2021   NL.IMRO.0606.BP0046-0002   9 juli 2021  
Schieveste fase 5   NL.IMRO.0606.BP0025-0002   24 september 2014  
Schieveste fase 5, eerste herziening   NL.IMRO.0606.BPoo45-0002   16 maart 2021  
Spaanse Polder en 's-Graveland 2004   N.v.t.   12 december 2005  
Spaland   NL.IMRO.0606.BP0006-0002   27 oktober 2011  
West   NL.IMRO.0606.BP0002-0002   26 april 2012  
Woudhoek   NL.IMRO.0606.BP0005-0002   2 februari 2012  
Zuid   NL.IMRO.0606.BP0001-0001   2 februari 2012  
Parapluplan Parkeren   NL.IMRO.0606.BP0044-0002   5 juni 2018  
Paraplu-bestemmingsplan begrippen en wijze van meten   NL.IMRO.0606.BP00100-0002   20 april 2021  

1.4 Leeswijzer

Het bestemmingsplan bestaat uit drie delen:

  • de toelichting: hierin worden de overwegingen beschreven die hebben geleid tot het geven van een bepaalde bestemming, evenals een uitleg van de gebruikte bestemmingen;
  • de regels: hierin wordt per bestemming een omschrijving gegeven van het toegestane gebruik en de toegestane bebouwing van de in dit plan begrepen gronden, en;
  • een verbeelding, met daarop aangegeven de bestemmingen van alle gronden.

De inhoud van de toelichting is als volgt opgebouwd:

  • Hoofdstuk 2 beschrijft de geschiedenis en de huidige situatie van het plangebied.
  • In hoofdstuk 3 is een beknopt overzicht opgenomen van de belangrijkste beleidsvisies van andere overheden die relevant zijn voor het plangebied. De gevolgen of effecten op de planologische en milieutechnische aspecten worden in hoofdstuk 4 beschreven.
  • De visie op het plangebied is beschreven in hoofdstuk 5. Op basis van verschillende aspecten wordt een beeld gevormd van herontwikkeling van het plangebied.
  • In hoofdstuk 6 worden de gehanteerde bestemmingen met bijbehorende regeling beschreven.
  • Hoofdstuk 7 heeft betrekking op de economische uitvoerbaarheid van het plan.
  • Tot slot behandelt hoofdstuk 8 de maatschappelijke uitvoerbaarheid.

Hoofdstuk 2 Beschrijving bestaande situatie

2.1 Waterkeringen

In bestemmingsplannen dient sinds 2003 een zogenaamde watertoets te worden opgenomen. dit is nationaal geregeld in het Besluit ruimtelijke ordening. De watertoets omvat het hele proces van vroegtijdig informeren, adviseren, afwegen en uiteindelijk beoordelen van waterhuishoudkundige aspecten in ruimtelijke plannen. Een van deze aspecten betreft het opnemen van waterkeringen, met bijbehorende beschermingszones, in het bestemmingsplan. Het Hoogheemraadschap maakt een zogenaamde Legger waarop deze zones zijn weergegeven. In 2022 is deze legger grootschalig herzien. Dit heeft tot gevolg dat de zones van waterkeringen in de bestemmingsplannen in Schiedam niet meer overal aansluit op deze nieuw legger. Om dit vertekende beeld op te lossen wordt daarom voor het gehele grondgebied van de gemeente Schiedam de nieuwe Legger doorgevoerd. Op sommige locaties is de zone verbreed. Op andere locaties is de zone vervallen of smaller. Verwezen wordt naar de verbeelding van het bestemmingsplan waar dit accuraat op is weergegeven door middel van de dubbelbestemming 'Waterstaat - Waterkering'.

2.2 Verleende omgevingsvergunningen

De afgelopen tijd zijn een aantal afwijkingen van het bestemmingsplan doorlopen waarbij omgevingsvergunningen zijn verleend voor diverse projecten. Het is gebruikelijk via de verzamelherziening deze afwijkingen planologisch te verankeren. Daarbij wordt geen wijziging wordt beoogd ten aanzien van de oorspronkelijk afgegeven omgevingsvergunning. Het betreft de volgende locaties:

- Stationsplein 2;

- Stadhouderslaan 121;

- Fietsenstalling Tweede Tuinsingel;

- Warmtestation Groenoord;

- Snelliussingel 160-164;

- Westpolderstraat 8;

- Parkweg 224-226;

- Schiedamseweg 77;

- Windas 6.

2.2.1 Stationsplein 2

In 2021 is een omgevingsvergunning verleend voor het afwijken van het bestemmingsplan ten behoeve van het project Terras aan de Schie. Door middel van deze omgevinsgvergunning wordt de transformatie van een kantoorgebouw aan het Stationsplein 2 naar een woongebouw met 190 woningen mogelijk gemaakt. De plannen voorzien tevens in commerciële ruimten op de begane grond en de eerste verdieping.

afbeelding "i_NL.IMRO.0606.BP00107-0001_0001.png"

Impressie project Stationsplein 2

2.2.2 Stadhouderslaan 121

In de wijk West is Tennisvereniging van Vliet gevestigd. In 2022 is een omgevingsvergunning verleend voor het bouwen van een schuur van ongeveer 65 m2 aan de Stadhouderslaan 121. In de schuur zullen onderhoudsmaterialen van de tennisbaan en de ijsbaan worden opgeslagen. De schuur is voorzien op de locatie van de voormalige oefenmuur. Deze grond werd door de gemeente reeds verhuurd aan de tennisvereniging.

afbeelding "i_NL.IMRO.0606.BP00107-0001_0002.png"

Beoogde schuur aan Stadhouderslaan 121

Bij het verstrekken van de omgevingsvergunning is betrokken dat er nu in de bestaande situatie een onveilige toestand is in speeltuin omdat daar allerlei materialen en machines worden opgeslagen. Ook is in het veld gebleken dat er geen reële alternatieven zijn om de berging elders te realiseren. Voorts wordt gewicht toegekend aan de maatschappelijke functie die de tennisbaan (in de winter een ijsbaan) heeft voor de gemeente Schiedam en dat door de ligging derden ook geen enkele hinder van de berging zullen ondervinden. Als gevolg van voorgaande wordt een stukje groenbestemming omgezet naar de bestemming 'Sport'.

2.2.3 Fietsenstalling Tweede Tuinsingel

Op 16 mei 2022 is een omgevingsvergunning verstrekt voor het realiseren van een fietsenstalling op het Ohmplein in Schiedam. Deze fietsenstalling heeft een hoogte van 3,0 meter, een breedte van 4,0 meter en een diepte van 19,0 meter. De fietsenstalling maakt onderdeel uit van een nieuw plantsoen dat door omwonenden is geinitieerd. Het plantsoen vormt daarmee een aanvulling op het project van de Herinrichting Natuurkundigenbuurt in Schiedam.

afbeelding "i_NL.IMRO.0606.BP00107-0001_0003.png"

Inrichting nieuw plantsoen met fietsenstalling

De fietsenstalling biedt plaats aan ongeveer 60 fietsparkeerplaatsen en enkele scooters. Het gebouw zal worden geconstrueerd met duurzame materialen en uitgevoerd worden met een sedumdak. In verband met de sociale veiligheid zal een gedeelte transparant worden uitgevoerd. De omgevingsvergunning voor de fietsenstalling is met een tijdelijke afwijking van het bestemmingsplan verleend. Door een bouwvlak op te nemen in deze verzamelherziening wordt de fietsenstalling nu structureel juridisch-planologisch geborgd.

afbeelding "i_NL.IMRO.0606.BP00107-0001_0004.png"

Impressie fietsenstalling

2.2.4 Warmtestation Groenoord

In 2021 is een omgevingsvergunning verleend voor het realiseren van het Warmtestation Groenoord aan de Groenoordstraat te Schiedam. Dit als vervolg op een besluit van de gemeenteraad uit 2020 om in Groenoord een warmtenet aan te leggen. In het warmteoverdrachtstation vindt, door middel van een warmtewisselaar, de warmteoverdracht plaats tussen het water uit de Leiding over Noord en het water van het toekomstige warmtenet van Groenoord. Het warmtestation wordt op een bestaand parkeerterrein gerealiseerd waarbij deze parkeerplaatsen worden gecompenseerd in de directe omgeving. Door de wijk Groenoord aan te sluiten op het warmtenet wordt veel aardgas en CO2 bespaard. Dit past bij de ambities ten aanzien van duurzaamheid van de gemeente Schiedam.

Als gevolg van voorgaande wordt in deze verzamelherziening de verkeersbestemming omgezet in een maatschappelijke bestemming.

afbeelding "i_NL.IMRO.0606.BP00107-0001_0005.png"

Impressie Warmtestation Groenoord

2.2.5 Snelliussingel 160-164

Aan de Snelliussingel 162-164 was een verouderd, leegstaand pand gelegen. In 2022 is een omgevingsvergunning verleend om de bestaande bebouwing te slopen en op deze plek een nieuw appartementencomplex te realiseren. De ontwikkeling is in onderstaande afbeelding geillustreerd. In dit complex komen in totaal 18 woningen. Aan de noordzijde heeft het complex vier bouwlagen. Aan de zuidzijde, waar ook een penthouse is gerealiseerd, heeft het gebouw zes bouwlagen. Ten opzichte van het bestemmingsplan 'Oost' zijn de functieaanduidingen voor detailhandel en dienstverlening verwijderd. De locatie had reeds een woonbestemming maar was hoger dan het bestemmingsplan 'Oost' toeliet. In deze verzamelherziening worden de bouwhoogten uit de omgevingsvergunning opgenomen.

afbeelding "i_NL.IMRO.0606.BP00107-0001_0006.png"

Impressie project Snelliussingel 160-164

2.2.6 Westpolderstraat 8

In 2023 is een omgevingsvergunning verleend voor de transformatie van een bestaande garage aan de Westpolderstraat 6 te Schiedam naar een woning. De garage wordt van een extra bouwlaag voorzien en daarnaast wordt omgevingsvergunningsvrij een aanbouw en berging gerealiseerd. Het is de bedoeling het perceel kadastraal af te splitsen van de Westpolderstraat 6 en te hernummeren naar Westpolderstraat 8. De bestemming 'Wonen 2' zal worden omgezet naar de bestemming 'Wonen 1'. Daarnaast zal de aanduiding met betrekking tot de garage worden verwijderd.

afbeelding "i_NL.IMRO.0606.BP00107-0001_0007.png"

Impressie transformatie Westpolderstraat 8

2.2.7 Parkweg 224-226

In 2022 is een omgevingsvergunning verleend voor de transformatie van het kantoor aan de Parkweg 224-226 naar woningen. Het voormalig kantoor op de eerste verdieping is inmiddels omgezet naar een zestal appartementen. De transformatie vindt plaats binnen de bestaande bouwmassa waardoor het puur om een gebruikswijziging gaat. Mede gelet op het gemeentelijke kantoorbeleid is het gewenst om de bestemming 'Kantoor' te wijzigen naar de bestemming 'Wonen'.

2.2.8 Schiedamseweg 77

Aan de Schiedamseweg 77 is een rioolgemaal gelegen dat wordt getransformerd tot vrijstaande woning. Het perceel maakte onderdeel uit van het kansen in de stad project. Inmiddels is een omgevingsvergunning verleend voor dit project waarbij het grootste gedeelte van het rioolgebouw intact blijft. Wel wordt aan de oostzijde een nieuw gebouw geplaatst. De contouren van de gebouwen zijn vertaald in een woonbestemming waar een maximale bouwhoogte van 4,5 meter van kracht is. De rest van het perceel, inclusief uitgegeven snippergroen heeft een tuinbestemming gekregen.

afbeelding "i_NL.IMRO.0606.BP00107-0001_0008.png"

Foto voormalig gemaal Schiedamseweg 77

2.2.9 Windas 6

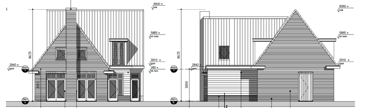
Begin 2023 is een omgevingsvergunning verleend voor de herbouw van de woning op de locatie Windas 6. Het plan voorziet in het slopen van de bestaande woning en opstallen en het oprichten van een nieuwe woning. De schuur aan de voorzijde is gesloopt om meer plaats te maken op het perceel. Stedenbouwkundig is het plan passend in de huidige omgeving en ook anderszins voldoet de aanvraag aan het gemeentelijke beleid. Hieronder is een impressie opgenomen van de vergunde woning.

afbeelding "i_NL.IMRO.0606.BP00107-0001_0009.png"

Bouwtekening Windas 6

2.3 Snippergroen

Door ontwikkelingen in het verleden is er veel snippergroen ontstaan. Regelmatig is er vraag van

bewoners om deze gronden uit te geven. De nota's 'Werkwijze snippergroen' en 'Aanvulling

werkwijze snippergroen' geven de voorwaarden waaraan bij de uitgifte van snippergroen moet

worden voldaan. Op basis van het snippergroenbeleid is de afgelopen jaren op verschillende

momenten besloten om snippergroen uit te geven aan bewoners.

Met dit bestemmingsplan wordt de privaatrechtelijke uitgifte van de gronden planologisch doorvertaald door de (openbare) groen- of verkeersbestemming te wijzigen naar een woon- of tuinbestemming. Het gaat om een beperkt aantal adressen waarvan de besluitvorming heeft plaatsgevonden nadat de vorige verzamelherziening in procedure is gegaan. Te weten:

- Gimbergpad 31;

- Leeuweriksingel 57;

- Rietkraag 16;

- Koekoekslaan 60 en 70;

- Bosrand 13,19 en 21;

- Pruimengaarde 24;

- Hargplein 52;

- Mary Zeldenruststraat 1.

Gimbergpad 31

Het Gimbergpad ligt in de wijk Woudhoek. Er is een verzoek gehonoreerd om aan de noordzijde van het Gimbergpad 31 een strook grond uit te geven. Het gaat om een stuk grond van ongeveer 18 m2 dat onderdeel uit maakt van het perceel dat kadastraal bekend is als sectie Q nummer 9333. de bestaande bestemming 'Groen' wordt in dit bestemmingsplan gewijzigd naar de bestemming 'Tuin'.

Leeuweriksingel 57

De Leeuweriksingel ligt in de wijk Kethel. Er is een verzoek gehonoreerd om aan de noordzijde van de Leeuweriksingel 57 een strook grond uit te geven. Het gaat om een stuk grond van ongeveer 87 m2 dat onderdeel uit maakt van het perceel dat kadastraal bekend is als sectie Q nummer 8784. De bestaande bestemming 'Verkeer-verblijfsgebied' wordt met dit bestemmingsplan in de bestemming 'Tuin' gewijzigd.

afbeelding "i_NL.IMRO.0606.BP00107-0001_0010.png"

Koekoekslaan 60 en 70

De Koekoekslaan ligt in de wijk Kethel in Schiedam Noord. Er zijn voor zowel de Koekoekslaan 60 en 70 verzoeken binnengekomen voor de uitgifte van snippergroen. Deze verzoeken zijn positief beoordeeld. Bij beide eindwoningen gaat het om een stuk grond aanpalend aan zowel de voor- als zijtuin.

Bij Koekoekslaan 70 gaat het om een stuk grond van ongeveer 36 m2 dat onderdeel uit maakt van het perceel dat kadastraal bekend is als sectie Q nummer 8908 en een stuk grond van ongeveer 66 m2 dat onderdeel uit maakt van het perceel dat kadastraal bekend is als sectie Q nummer 9637 . De bestaande bestemmingen 'Groen' en 'Verkeer-verblijfsgebied' worden in dit bestemmingsplan gewijzigd naar de bestemming 'Tuin'.

afbeelding "i_NL.IMRO.0606.BP00107-0001_0011.png"

Bij Koekoekslaan 60 gaat het om een stuk grond van ongeveer 27 m2 dat onderdeel uit maakt van het perceel dat kadastraal bekend is als sectie Q nummer 8908 en een stuk grond van ongeveer 62 m2 dat onderdeel uit maakt van het perceel dat kadastraal bekend is als sctie Q nummer 9492 . De bestaande bestemming 'Verkeer-verblijfsgebied' wordt in dit bestemmingsplan gewijzigd naar de bestemming 'Tuin'.

afbeelding "i_NL.IMRO.0606.BP00107-0001_0012.png" afbeelding "i_NL.IMRO.0606.BP00107-0001_0013.png"

Rietkraag 16

De Rietkraag 16 ligt nabij Windas in de wijk Kethel. Aan de achterzijde van de tussenwoning is een perceel van ongeveer 17 m2 verkocht aan de bewoners. Het betreft een gedeelte van het perceel Q8917 dat nu de bestemming 'Tuin' in plaats van 'Groen' krijgt.

afbeelding "i_NL.IMRO.0606.BP00107-0001_0014.png"

Bosrand 13, 19 en 21

De Bosrand ligt in de wijk Kethel. In dit gebied is de afgelopen jaren al veel snippergroen uitgegeven. Eind 2022 is er een kleine strook achtertuin aan zowel de Bosrand 13, 19 en 21 uitgegeven. Het oppervlak is bij elk adres ongeveer 20 m2. Conform de eerdere verzamelherzieningen zullen deze stroken de bestemming 'Wonen' krijgen.

afbeelding "i_NL.IMRO.0606.BP00107-0001_0015.png"

Hargplein 52

Aan het Hargplein 52 is zowel aan de westzijde als aan de zuidzijde een stuk snippergroen verkocht (sectie Q nummers 9825 en 9827). In totaal gaat het om ongeveer 180 m2. De gronden krijgen gedeeltelijk de bestemming 'Wonen' en gedeeltelijk de bestemming 'Tuin'.

afbeelding "i_NL.IMRO.0606.BP00107-0001_0016.png"

Mary Zeldenruststraat 1

De Mary Zeldenruststraat ligt in het noorden van de wijk Spaland. Aan dit adres is eind 2022 een driehoekig perceel snippergroen uitgegeven (sectie Q, nummer 9838). De grond wordt hier gewijzigd van de bestemming 'Groen' naar de bestemming 'Wonen'.

afbeelding "i_NL.IMRO.0606.BP00107-0001_0017.png"

Pruimengaarde 24

Aan de Pruimengaarde 24 is tussen de Pruimengaarde, Gaardenpad en de Kerkweg eind 2022 een stuk snippergroen uitgegeven (sectie Q, nummer 9841) van ongeveer 63 m2. De bestemming wijzigt hier van een verkeersbestemming naar een woonbestemming.

afbeelding "i_NL.IMRO.0606.BP00107-0001_0018.png"

2.4 Zuidelijke stationszijde

Het station Schiedam Centrum ligt in zowel bestemmingsplan 'Schieveste' als 'Oost'. In het in 2023 vastgestelde bestemmingsplan 'Schieveste' is bij de bestemming 'Verkeer-Railverkeer' opgenomen dat onder andere is toegestaan: "een station met bijbehorende (kleinschalige) voorzieningen, zoals horeca, detailhandel (niet zijnde grootschalige detailhandel), kantoren of een informatiepunt". Het bestemmingsplan 'Schieveste' geldt ten noorden van het station. Aan de zuidzijde van het station geldt het bestemmingsplan 'Oost' dat in 2011 is vastgesteld. Ook hier geldt de bestemming 'Verkeer-Railverkeer' met een andere doeleindenomschrijving. In deze verzamelherziening wordt de bestemming 'Verkeer-Railverkeer' in het bestemmingsplan 'Oost' aangepast aan de omschrijving in het bestemmingsplan 'Schieveste'. Op deze wijze geldt voor het gehele stationsgebied dezelfde regels. Om misverstanden te voorkomen zal wel in de regels expliciet toegevoegd worden dat een taxistandplaats binnen deze bestemming is toegestaan. Dit met het oog op een mogelijke, al dan niet tijdelijke, verplaatsing van de taxistandplaats als gevolg van bouwwerkzaamheden in de nabije omgeving van het station.

2.5 Bijdorp

De wijk Bijdorp ligt in het vastgestelde bestemmingsplan 'Harga'. De woningen hebben de bestemmingen 'Wonen-1', 'Wonen-2' en 'Wonen-3'. In dit bestemmingsplan is een omissie ontstaan doordat geen maximale bouwhoogten bij deze woonbestemmingen zijn opgenomen. Bij de andere bestemmingen is dit wel gedaan. De juridische systematiek is dat als er geen bouwhoogte is opgenomen in het bestemmingsplan, hier ook niet op getoetst mag worden. Dit zou in theorie kunnen leiden tot ongewenste bouwhoogten van woningen. Hoewel dit in de praktijk nog niet tot ongewenste situaties heeft geleid, is het wel gewenst om deze situatie aan te passen. Met deze verzamelherziening wordt de omissie in het bestemmingsplan 'Harga' hersteld door in de regels de bestaande goot- en bouwhoogten als maximum te nemen.

Aan de Schiedamseweg 184-4 is een woning gelegen die abusievelijk deels een bedrijfsbestemming heeft gekregen. Dit wordt nu gecorrigeerd. Daarbij wordt direct van de gelegenheid gebruik gemaakt om op de twee woningen die aanwezig zijn in de molenromp goed te bestemmen en het bouwvlak aan de oostzijde van de molenromp te verwijderen.

2.6 Verwijderen aanduiding bedrijfswoning Jan Evertsenweg

In 2020 is besloten over de aanpak van de geluidsproblematiek in het Schiedamse havengebied. In algemene zin is de aanwezigheid van bedrijfswoningen op een industrieterrein uit het oogpunt van een goede ruimtelijke ordening niet (langer) wenselijk. Enerzijds kan de aanwezigheid van bedrijfswoningen leiden tot een ongewenste beperking van de bedrijfsvoering van bedrijven, anderzijds kan bewoners geen goed woon- en leefklimaat worden gegarandeerd. Dit laatste, en de daarmee samenhangende (geluids)klachten, vormde aanleiding om actief in te zetten op beëindiging van het gebruik van de bedrijfswoningen. Onderdeel van deze aanpak is het inzetten op de minnelijke verwerving van de 5 bedrijfswoningen aan de Jan Evertsenweg. Dit betreft de adressen: Jan Evertsenweg 20, Jan Evertsenweg 28, Jan Evertsenweg 30, Jan Evertsenweg 32 en Jan Evertsenweg 34. Inmiddels zijn de huisnummers 20, 32 en 34 verworven. Met de nummers 28 en 30 lopen nog verregaande onderhandelingen maar de verwachting is dat deze binnen afzienbare tijd kunnen worden verworven.

Om die reden wordt van al deze woningen aan de Jan Evertsenweg de aanduiding 'bedrijfswoning' weggehaald. De overige regels blijven daarbij ongewijzigd ten opzichte van het vigerende bestemmingsplan 'Havens' en 'Havens, eerste herziening'.

2.7 Waterleiding Parkweg

In het bestemmingsplan 'Nieuwland 2016' is de waterleiding van Evides opgenomen. Deze systematiek is ook bij het wijzigingsplan 'Parkweg-Midden' overgenomen. Nadien is gebleken dat de ligging van de drinkwatertransportleiding niet geheel overeenkomst met de zone op de verbeelding van het bestemmingsplan. De gemeente Schiedam en Evides hebben in onderling overleg afgesproken dat de leiding verlegd kan worden om zo het plan Parkweg-Midden mogelijk te maken. De nieuwe feitelijke ligging van de drinkwatertransportleiding wordt nu opgenomen op de verbeelding van deze verzamelherziening. Daarmee wordt aangesloten bij de systematiek van de bestemmingsplannen in Nieuwland

2.8 Uitvaartcentra

In de gemeente Schiedam kunnen uitvaartcentra zich vestigen op locaties waar maatschappelijke voorzieningen zijn toegestaan. Dit omdat in de landelijke regelgeving (SVBP) uitvaartcentra als een maatschappelijke voorziening kunnen worden gezien. De locaties waar het om gaat zijn niet alleen locaties die de bestemming ''Maatschappelijk' hebben maar ook binnen een gemengde bestemming zijn veelal maatschappelijke functies mogelijk. Denk hierbij bijvoorbeeld aan een voorzieningenstrook op de begane grond van een gebouw met gestapelde woningen. De gemeente kan hierdoor geen regie meer voeren op de vestiging van deze bedrijven.

In de praktijk is gebleken dat door de aard van de bedrijfsactiviteiten dit tot maatschappelijke onrust kan leiden. Om die reden is het gewest om in dit bestemmingsplan een regeling op te nemen. Doel hiervan is niet op deze bedrijven te verbieden maar om regie te kunnen voeren op de vestigingslocatie van deze bedrijven. Dit is geregeld in dit bestemmingsplan door een gebruiksverbod met afwijking op te nemen.

2.9 Nieuwe Waterwegstraat 45

De Nieuwe Waterwegstraat 45 ligt in het bestemmingsplan Havens. Ten tijde van het vaststellen van dit bestemmingsplan was op dit adres het bedrijf Van Mannekus & Co gevestigd. In de tussentijd is dit bedrijf vertrokken waarna het perceel is aangekocht door het bedrijf Royal Cement Benelux.

Op grond van de provinciale omgevingsverordening moeten bestemmingsplannen voor gronden gelegen op bedrijventerreinen bedrijven uit de hoogste mogelijke milieucategorie mogelijk maken. Bij het bepalen van deze hoogste categorie is destijds in het bestemmingsplan rekening gehouden met vier factoren: de richtafstanden op grond van de VNG-brochure 'Bedrijven en milieuzonering', de milieucategorie van bestaande bedrijven, de voorziene transformatie van de Wilhelminahaven en de aard en uitstraling van het bedrijventerrein. Op grond van deze uitgangspunten is de hoogst mogelijke milieucategorie categorie 5.1 uit de brochure.

Bedrijven in een hogere milieucategorie dan op grond van de richtafstanden met betrekking tot milieuzonering is toegelaten, zijn in bestemmingsplan Havens met een uitsterfconstructie positief bestemd. dit ging om een tweetal bedrijven namelijk Klasmann-Deilmann en Van Mannekeus & Co. In de regels staat hierover: "ter plaatse van de aanduiding 'bedrijf van categorie 5.2', tevens het bestaande bedrijf in categorie 5.2 als bedoeld in de als bijlage 3 opgenomen Staat van milieubelastende activiteiten 'gezoneerd industrieterrein', met dien verstande dat bij omschakeling naar een andere bedrijfsactiviteit voldaan dient te worden aan het bepaalde in 5.1, onder e (maximaal milieucategorie 5.1)'.

Nu het bestaande bedrijf , namelijk Van Mannekus & Co, is vertrokken, is inmiddels ter plekke reeds maximaal milieucategorie 5.1 toegestaan. Voor de leesbaarheid en de rechtszekerheid wordt in deze verzamelherziening nu de aanduiding milieucategorie 5.2 van de verbeelding gehaald. De overige regels blijven onverminderd van kracht. Nu Royal Cement Benelux als een milieucategorie 5.1 bedrijf is aan te merkern, heeft deze wijziging geen gevolgen voor het ter plekke gevestigde bedrijf.

Hoofdstuk 3 Beleidskader

Dit hoofdstuk geeft een beknopt overzicht van het relevante ruimtelijk beleid voor het bestemmingsplan op nationaal, provinciaal, regionaal en gemeentelijk schaalniveau. Per beleidsstuk is aangegeven in hoeverre deze haar doorwerking heeft in het bestemmingsplan. Bij het lezen van het hoofdstuk moeten in ogenschouw worden genomen dat voor de verleende omgevingsvergunningen, zoals genoemd in paragraaf 2.3 van deze toelichting, de toetsing aan wetgeving en beleid reeds in het kader van de omgevingsvergunningsprocedure heeft plaatsgevonden.

3.1 Rijksbeleid

3.1.1 Nationale Omgevingsvisie

Ook in de toekomst moet Nederland een gezonde en aantrekkelijke leefomgeving bieden en economisch kunnen floreren. Daarom is het van belang om inzicht te hebben in de opgaven waar Nederland voor staat. De druk op de ruimte, op onze leefomgeving, vraagt voortdurend om afweging van verschillende belangen. Internationale ontwikkelingen, de invloed van technologie en de groeiende verschillen tussen regio's vragen om snellere, creatieve en integrale afwegingen. Het klimaat verandert en er moet zorgvuldiger worden omgaan met energiebronnen en grondstoffen. Ook daaruit vloeien nieuwe opgaven. In aanloop naar de Omgevingswet komt er één rijksvisie op de leefomgeving: de Nationale Omgevingsvisie (NOVI). Uitgangspunt in de nieuwe aanpak is dat ingrepen in de leefomgeving niet los van elkaar plaatsvinden, maar in samenhang. De NOVI is vastgesteld op 11 september 2020.

De NOVI schetst een duurzaam toekomstperspectief voor de leefomgeving in Nederland in 2050. Dit toekomstperspectief voor Nederland is:

  • Een klimaatbestendige delta, waarbij Nederland beschermd is tegen de negatieve gevolgen van klimaatverandering, waterveiligheid (ook voor de laaggelegen gebieden in het westen) gegarandeerd is en voldoende zoetwater beschikbaar is van goede kwaliteit;
  • Duurzaam, concurrerend en circulair: een toekomstbestendige en volledig circulaire economie zonder vervuilende manieren van produceren en consumeren, met een uitstekend vestigingsklimaat en een hoge 'quality of life', met een zo goed mogelijke inpassing van duurzame energie in onze leefomgeving en slimme combinaties van functies zonder de risico's en milieunadelen te vergroten. Een economie die veel maatschappelijke winst oplevert in termen van banen, innovatie en nieuwe bedrijvigheid en exportmogelijkheden;
  • Kwaliteit van leven in stad en dorp: met een aantrekkelijke woon- en leefomgeving en een goede verbondenheid van stad en land. De ontwikkelingen zijn gericht op kwaliteit, met gecontroleerde en doordachte groei waar dat nodig is, waardoor diversiteit in wonen, een stedelijk netwerk, prettige woonmilieus, met rust en ruimte maar ook vitale en leefbare regio's ontstaan.
  • Nabijheid en betrouwbare verbindingen: een uitstekende bereikbaarheid wordt met een goede en betrouwbare infrastructuur gegarandeerd, waarbij wordt ingespeeld op locatiekeuzes voor wonen en werken (nabijheid). De infrastructuur is onderdeel van een mobiliteitssysteem dat een meer divers patroon van mobiliteit veilig, robuust en duurzaam afhandelt. Luchthavens blijven belangrijk voor een sterk internationaal netwerk voor de lange afstanden. De uitdaging is om het vliegverkeer net als het goederenvervoer op een zo veilige, efficiënte en duurzame manier vorm te geven.
  • Veilig en gezond, herkenbaar en natuurlijk: een veilig en gezond leven voor iedereen staat voorop. De leefomgeving nodigt uit om te bewegen, elkaar te ontmoeten en te ontspannen. Daarbij horen een goede milieukwaliteit, robuuste natuur, klimaatbestendigheid en voor iedereen goede toegang tot wonen, werken en voorzieningen.

Het realiseren van een fysieke leefomgeving die dit toekomstperspectief mogelijk maakt, is een gezamenlijke verantwoordelijkheid van alle overheden. In de NOVI benoemt het Rijk 21 nationale belangen voor het omgevingsbeleid, inclusief de opgaven en de rol van het Rijk in het realiseren van deze opgaven. Deze opgaven komen samen in vier prioriteiten. Deze prioriteiten vormen complexe, omvangrijke en dringende opgaven die voortkomen uit of samenhangen met grote transities. Deze prioriteiten zijn:

1. Naar een duurzame en concurrerende economie;

2. Naar een klimaatbestendige en klimaatneutrale samenleving;

3. Naar een toekomstbestendige en bereikbare woon- en werkomgeving;

4. Naar een waardevolle leefomgeving.

Deze vier opgaven kunnen alleen in samenhang verder worden gebracht wanneer aandacht is voor thema's die hier dwars doorheen lopen, zoals omgevingskwaliteit, gezondheid, cultuurhistorie, klimaatadaptatie, water, bodem, (nationale) veiligheid en milieukwaliteit. Deze verzamelherziening is niet in strijd met de uitgangspunten van de Nationale Omgevingsvisie.

3.1.2 Besluit algemene regels ruimtelijke ordening

De nationale belangen uit de structuurvisie die juridisch borging vragen zijn opgenomen in het Besluit algemene regels ruimtelijke ordening (Barro). Een aantal rijksbelangen wordt met dit besluit geborgd in bestemmingsplannen en andere ruimtelijke plannen van overheden. Onderwerpen die aan bod komen zijn: rijksvaarwegen, de mainportontwikkeling Rotterdam, kustfundament, grote rivieren, de Waddenzee en het waddengebied, defensie, hoofdwegen en landelijke spoorwegen, elektriciteitsvoorziening, buisleidingen, primaire waterkeringen, de ecologische hoofdstructuur, het IJsselmeergebied, erfgoederen van uitzonderlijke universele waarde en de ruimtereservering voor de parallelle Kaagbaan. Geen van deze rijksbelangen zijn van toepassing op het plangebied.

3.2 Provinciaal en Regionaal beleid

3.2.1 Provinciale Omgevingsvisie Zuid-Holland

Het Omgevingsbeleid wordt gevormd door de Omgevingsvisie en de Omgevingsverordening die per 1 april 2019 in werking zijn Met het samenbrengen van verschillende beleidsplannen voor de fysieke leefomgeving tot één integraal Omgevingsbeleid sorteert de provincie voor op de Omgevingswet. Met haar Omgevingsbeleid streeft de provincie naar een optimale wisselwerking tussen gewenste ruimtelijke ontwikkelingen en een goede leefomgevingskwaliteit. Hieraan geeft men richting door het maken van samenhangende beleidskeuzes, die volgen uit onze provinciale opgaven. Deze beleidskeuzes werken door naar uitvoeringsprogramma's en naar regels in de verordening. Het geheel aan bestaande beleidskeuzes, inclusief de doorwerking naar programma's en verordening, vormt het provinciale beleid voor de fysieke leefomgeving. Deze verzamelherziening is niet in strijd met de uitgangspunten van de Provinciale Omgevingsvisie.

3.2.2 Provinciale Omgevingsverordening

De Omgevingsverordening stelt regels met betrekking tot belangrijke ruimtelijke elementen die een doorwerking hebben in het bestemmingsplan. Onderwerpen die aan bod komen zijn onder andere ruimtelijke kwaliteit, de ladder voor duurzame verstedelijking, kantoren, bedrijven, detailhandel, veiligheidszonering oevers Nieuwe Maas, ruimtelijke kwaliteit, herbestemmen bestaande bebouwing buiten het bestaand stadsgebied, ecologische hoofdstructuur, molenbiotopen, windenergie, regionale waterkeringen, buitendijks bouwen en archeologie.

Dit bestemmingsplan is, gelet op de thema's uit de Omgevingsverordening, slechts voor een aantal onderwerpen relevant. Ten eerste gaat het om de regionale waterkeringen. Deze worden in dit bestemmingsplan 1 op 1 overgenomen van de nieuwe Legger van het Hoogheemraadschap van Delfland. Het Hoogheemraadschao heeft reeds met dit aspect van het ebstemmingsplan ingestemd. Gelet op artikel 6.22 van de verordening is er dan ook geen strijdigheid.

Verder is het thema ruimtelijke kwaliteit van belang. Het plangebied ligt in stedelijk gebied buiten aangewezen beschermingscategorieën. Voor de verstrekte onherroepelijke omgevingsvergunningen heeft reeds een planologische toets plaatsgevonden. De overige onderwerpen uit deze verzamelherziening leiden niet tot een situatie waarbij de ruimtelijke kwaliteit per saldo verslechterd zoals bedoeld in artikel 6.9 van de omgevingsverordening.

 

Verder zijn er geen provinciale belangen specifiek relevant. Het bestemmingsplan is daarmee in overeenstemming met het bepaalde in de provinciale Omgevingsverordening.

3.2.3 Keur en legger Hoogheemraadschap van Delfland

Het Hoogheemraadschap van Delfland heeft op 10 maart 2022 een nieuwe legger vastgesteld. Deze is in werking sinds 5 april 2022. De legger toont waterkeringen, oppervlaktewaterlichamen, bergingsgebieden en ondersteunende kunstwerken. Onder de waterkeringen vallen de primaire waterkeringen (zeewering en Delflandsedijk), regionale waterkeringen (genormeerde boezemkaden, genormeerde compartimenteringskeringen, keringen rondom boezembergingen en genormeerde polderkaden) en overige waterkeringen (polderkaden en landscheiding). In de legger geeft Delfland voor elk waterstaatswerk aan waaraan deze moet voldoen, wie welk soort onderhoud doet en waar welke regels gelden, zodat alles op orde blijft. Deze ‘regels’ staan in de Keur Delfland, de bijbehorende Algemene Regels en de beleidsregels. Ook geeft Delfland aan waar de beschermingszone en het profiel van vrije ruimte ligt. Dit is ruimte die Delfland reserveert om bijvoorbeeld wateren in goede staat te houden, of om een dijk in de toekomst te kunnen versterken. De legger is een juridisch instrument en is gebaseerd op de Waterwet en de Waterschapwet. De legger bestaat uit twee delen: leggertekst: het tekstuele deel van de legger (leggertekst) en de digitale verbeelding van de legger (leggerkaart). De leggerkaart moet samen met de leggertekst gelezen worden.

De actuele legger is verwerkt in het voorliggende bestemmingsplan. Daarmee wordt voldaan aan het beleid van het Hoogheemraadschap van Delfland.

3.3 Gemeentelijk/lokaal beleid

3.3.1 Economische Visie Kansen voor Schiedam

Op 2 november 2021 heeft de gemeenteraad van Schiedam de economische Visie Kansen voor Schiedam vastgesteld. De actuele economische context, waarin nog meer dan voorheen de nadruk ligt op digitalisering, duurzaamheid en stedelijke verdichting, vroeg om herziening van het beleid uit 2016. Ook de aanstaande Omgevingswet vraagt om een duidelijke keuze ten aanzien van ruimtegebruik. Als centrale missie in de economische visie is opgenomen dat Schiedam staat voor een sterk, aantrekkelijk en toekomstbestendig economisch vestigingsklimaat, als voorwaarde voor het creëren van brede welvaart in de gemeente.

Voor wat betreft het plangebied van de 'Verzamelherziening 2023' is het volgende van belang. In de economische visie is opgenomen dat Schiedam drie kantorenlocaties heeft waar (grotere) kantoren zich kunnen vestigen. Dit zijn Vijfsluizen, 's-Graveland Zuid en het gebied rond station Schiedam Centrum. Om die reden wordt de kantoorbestemming van de Parkweg 224-226 afgehaald. Van dit voormalige kantoor zijn inmiddels appartementen gemaakt. Daarnaast is in het project Terras aan de Schie aan het Stationsplein een commercieel programma voorzien waaronder kantoren. In de regels is het oppervlak begrensd tot 650 m2.Dit projectgebied valt echter onder 1 van.de drie kantorenlocaties en past daarmee in de Economische Visie van Schiedam.

Tot slot is bij het plangebied aan de Snelliussingel de aanduiding detailhandel weggehaald. Nu deze locatie niet in een kernwinkelgebied, wijkwinkelcentrum of andere aangewezen gebied ligt, is hier detailhandel beleidsmatig niet toegestaan.

Gelet op het voorgaande en de waarborgende regels van het bestemmingsplan, kan dan ook worden gesteld dat het bestemmingsplan voldoet aan de Economische Visie Kansen voor Schiedam.

3.3.2 Stadsvisie

Op 28 september 2009 heeft de gemeenteraad de 'Stadsvisie Schiedam 2030' vastgesteld. Deze Stadsvisie geldt als een structuurvisie als bedoeld in de Wet ruimtelijke ordening. De Stadsvisie is tot stand gekomen in samenspraak met veel partijen uit de stad. In dit kader is van december 2008 tot en met april 2009 een interactief traject uitgevoerd met een grote betrokkenheid van burgers, partners, ondernemers en raadsleden. De uitkomsten van dit traject zijn opgenomen in de Stadsvisie. In de Stadsvisie wordt geconcludeerd dat het onmogelijk is om alle hoofdopgaven tegelijk uit te voeren. Daarom vormen de hoofdopgaven het kader waar, binnen de periode 2010-2030, ruimtelijke werkzaamheden uit voortvloeien.

De Stadsvisie zet in op het verbeteren van de bestaande woningvoorraad. De woningvoorraad dient te worden verbreed naar doelgroepen die kapitaalkrachtiger zijn en een vergroting van de marktsector mogelijk maken. Hierdoor kan beter worden voldaan aan de vraag van midden- en hogere inkomensgroepen naar een wooncarrière in de stad, wordt ruimte geboden voor sociale stijging en wordt een impuls gegeven voor een breed en aantrekkelijk voorzieningenniveau. Gestreefd wordt naar het realiseren van een duurzame en kwalitatief hoogwaardige woon- en leefomgeving. De uitgifte van snippergroen als privétuin draagt hier aan bij.

De wijzigingen in dit bestemmingsplan zijn in overeenstemming met de Stadsvisie.

3.3.3 Ontwikkelingsvisie Stad aan de Schie

De Ontwikkelingsvisie voor de binnenstad is in juni 2012 vastgesteld. Het doel van de visie is het opstellen van een leidraad voor de ontwikkeling van de Schiedamse binnenstad. Omdat het een integrale visie betreft, gaat het niet alleen om ruimtelijke ontwikkelingen, maar ook om de sociale, culturele en economische ontwikkelingen die daarmee samenhangen. De ontwikkelingsvisie biedt heldere kaders, is een inspirerend startpunt en daarmee een uitnodiging van de gemeente richting haar partners om in gesprek te gaan over de verdere ontwikkeling van de binnenstad. De ambitie van de visie is om het aantal mensen in de binnenstad te verhogen. De ontwikkelingsvisie stelt de Schie centraal bij de transformatie van de binnenstad. De opgave is om de binnenstad weer te koppelen aan de rivier waaraan zij haar ontstaan te danken heeft. In de visie wordt een onderscheid gemaakt naar winkelgebied, gemengd gebied en woongebied.

De wijzigingen in dit bestemmingsplan (eerder verleende omgevingsvergunningen, verbeteringen vastgestelde plannen en feitelijke wijzigingen) zijn in overeenstemming met de Ontwikkelingsvisie.

3.3.4 Woonvisie 'Groei als kans voor de stad'

Op 29 september 2020 is de woonvisie 'Groei als kans voor de stad' vastgesteld. De Woonvisie geeft een actuele kijk op het wonen in Schiedam en beschrijft de koers die de gemeente de komende 20 jaar wil volgen. De belangrijkste ambities van de Woonvisie zijn: groei als kans voor de stad, wooncarrière voor alle Schiedammers, passende en herkenbare woonmilieus, passende woningen, groei van de kwaliteit van de woningvoorraad en de leefomgeving, een veilige en leefbare woonomgeving en verduurzaming van de bestaande bouw en nieuwbouw. Om deze ambities te realiseren gaat de Woonvisie uit van:

  • het toevoegen van 6.000 woningen en het vervangen van 1.000 woningen tot 2030;
  • het realiseren van 2.000 passende woningen voor senioren;
  • het gelijk houden van de sociale woningvoorraad (niveau 2018);
  • versterken particuliere woningverbetering, inclusief verduurzamen bestaande woningen.

Schiedam heeft de ambitie om de komende jaren belangrijke tekorten aan passende woningen aan te vullen en daarnaast de sociale voorraad in absolute aantallen gelijk te houden. Het doel is dat er voldoende passende woningen beschikbaar komen om een wooncarrière in Schiedam te kunnen maken. De behoefte bestaat met name uit meer verschillende typen woningen voor Schiedammers die willen doorstromen binnen Schiedam, maar ook het toevoegen van woningtypen die momenteel nog ontbreken in Schiedam. Om in deze behoefte te voorzien zullen binnen de stad aantrekkelijke nieuwe woongebieden worden ontwikkeld, waardoor het woningaanbod afwisselender wordt en de kwaliteit van de leefomgeving stijgt.

De wijzigingen in dit bestemmingsplan zijn in overeenstemming met de Woonvisie.

3.3.5 Mobiliteitsvisie 'Op weg naar de toekomst'

De mobiliteitsvisie 'Op weg naar de toekomst' is op 3 november 2020 vastgesteld. De Mobiliteitsvisie heeft als ambitie om bij te dragen aan het realiseren van een leefbare en bereikbare stad, een gezonde en duurzame stad en een sociale en veilig stad.

Een aantrekkelijke stad is een stad waar ruimte is voor wonen, ontmoeten, werken en recreëren. Mobiliteit zorgt voor verbinding en kan ontwikkelingen aanjagen. Mobiliteit heeft ook een keerzijde; hoge parkeerdruk, toenemende overlast van binnenstadslogistiek en een groeiend aantal files in en rondom de stad, die de leefbaarheid en bereikbaarheid van de stad onder druk zetten. Tegelijkertijd heeft een goede bereikbaarheid van bedrijven voor werknemers, werkgevers en leveranciers een directe invloed op het vestigingsklimaat en de concurrentiepositie van Schiedam in de regio.

De Mobiliteitsvisie geeft een andere, vernieuwende kijk op mobiliteit, met een juiste balans als uitgangspunt. Keuzes die verblijfkwaliteit toevoegen en er tegelijkertijd voor zorgen dat mensen en plekken verbonden blijven. Daarbij wordt meer ingezet op duurzame en ruimte-efficiënte vervoersmiddelen, zoals lopen, fietsen en een kwalitatief hoogwaardig OV en worden auto's en vrachtverkeer zoveel als mogelijk geweerd uit de drukke binnenstad. Tegelijkertijd wordt het eenvoudiger en aantrekkelijker om te kiezen voor alternatieven.

 

Transportmiddelen zijn verantwoordelijk voor bijna een derde van alle CO2-uitstoot door verkeer en voor meer dan 60 procent van de uitstoot van stikstofdioxide (NO2). De bijdrage hiervan aan de verslechtering van de luchtkwaliteit en daarmee ook de gezondheid is aanzienlijk. De ambitie is om deze uitstoot terug te dringen, met een sterkere inzet op duurzame en groene alternatieven voor met name het auto- en vrachtverkeer. Bij de sociale component van mobiliteit wordt ingezet op 'inclusiviteit': iedereen moet van het mobiliteitsaanbod gebruik kunnen maken.

De wijzigingen in dit bestemmingsplan zijn in overeenstemming met de Mobiliteitsvisie.

3.3.6 Klimaatbeleid 'Een wereld te winnen'

Het klimaatbeleid heeft twee invalshoeken: klimaatmitigatie en klimaatadaptatie. Mitigatie richt zich op het aanpakken van de oorzaken van klimaatverandering. Adaptatie accepteert klimaatverandering en richt zich op aanpassen van de omgeving aan de gevolgen daarvan.

Op 3 november 2020 heeft de gemeenteraad het klimaatbeleid 'Een wereld te winnen' vastgesteld. Het Klimaatbeleid bouwt voort op de weg die is ingeslagen met het Programma Duurzaamheid en het Klimaatbeleidsplan 2016-2020. De ambitie is om de uitstoot van broeikasgassen verder te verminderen en de stad voor te bereiden om de energietransitie. Op 12 maart 2019 heeft de gemeenteraad het Klimaatadaptatieplan Schiedam vastgesteld, waarin de ambitie is vastgelegd dat de stad in 2050 klimaatbestendig en water robuust is ingericht. De belangrijkste doelstellingen uit beide nota's zijn:

  • 49% minder uitstaat van broeikasgassen in 2030 ten opzichte van 1990;
  • in 2050 is Schiedam CO2-neutraal;
  • iedereen kan meedoen in de energietransitie;
  • Schiedam is voorbereid op extreme weersomstandigheden;
  • het vergroten van de biodiversiteit en het versterken van de ecologische waarde in en buiten Schiedam.

Om deze doelstellingen te bereiken wordt voor wat betreft klimaatmitigatie verder ingezet op de toepassing van zonne-energie, met als ambitie om in 2030 op 40% van de daken zonnepanelen te hebben. Ook is er ruimte voor andere vormen van hernieuwbare energievoorziening, zoals windenergie, warmtepompen en warmte-koude opslag. De ambities zijn er op gericht om in 2050 voor wat betreft de woningen volledig aardgasvrij te zijn. Voor nieuwbouw en bij herstructurering geldt daarbij dat voldaan moet worden aan de wettelijke BENG-normen ten aanzien van de maximale energiebehoefte, het maximale primair fossiele energiegebruik en het minimale aandeel hernieuwbare energie. Daarnaast geldt dat zoveel als mogelijk gebruik gemaakt wordt van circulaire materialen, waarbij bijvoorbeeld aandacht is voor materiaalregistratie, losmaakbaarheid, biobased en non-virgin.

De wijzigingen in dit bestemmingsplan zijn in overeenstemming met het Klimaatbeleid.

3.3.7 Klimaatadaptieplan

Klimaatadaptatie betreft vier thema's, die betrekking hebben op 'te veel' of 'te weinig' aan water: wateroverlast, droogte, hitte en overstromingen. Om wateroverlast te voorkomen, is uitgangspunt dat de stad een extreme bui (waarbij 60 mm neerslag valt in een uur tijd) kan verwerken. Om in tijden van droogte het uitdrogen van de bodem en het 'uitzakken' van de grondwaterstand tegen te gaan, wordt zoveel mogelijk water opgevangen, vastgehouden en geïnfiltreerd in de bodem. Om de opwarming van de stad in tijden van een hittegolf te beperken, is de doelstelling dat de stad hooguit 2 °C meer opwarmt dan het omliggende landelijke gebied. Doelstelling voor overstromingen is dat Schiedammers beschikken over een handelingsperspectief voor de overstromingsgevoelige gebieden.

Een ander gevolg van klimaatverandering is de wereldwijde afname van biodiversiteit. Om verschillende redenen wil Schiedam het groen in de stad versterken. Er is een samenhang met klimaatadaptatie, omdat vergroening ook een rol speelt in met name de aanpak van hittestress. Door een goede groeninrichting van de buitenruimte en door in en rond bebouwing natuur-inclusieve maatregelen te nemen, wordt (mede) een belangrijke bijdrage geleverd aan het versterken van de biodiversiteit in de stad.

De wijzigingen in dit bestemmingsplan zijn in overeenstemming met het Klimaatadaptatieplan.

3.3.8 GroenBlauwe Structuurvisie

Begin 2015 is de GroenBlauwe Structuurvisie vastgesteld. Daarin wordt een visie gegeven op het toewerken van het toekomstige groenblauwe netwerk naar sfeer, gebruik, status en toekomstwaarde en de relaties tussen de verschillende onderdelen van het groenblauwe netwerk. De visie beschrijft in hoofdlijnen een groenblauwe structuur die opgebouwd is uit drie grootheden. Twee sterke eigen identiteiten met hun eigen invloeden en sferen, namelijk de wereld rond de rivier en het landschap van Midden-Delfland. De verbindende factor tussen deze twee werelden is het landschap in de Poldervaartpolder welke gekenmerkt wordt door een sterk centraal element, de naamdrager van de polder: de Poldervaart. Dit geeft een ultieme afwisseling van groenblauwe gebieden en sferen die in zijn totaal een perfecte basis vormt voor een grootschalige, robuuste groenblauwe structuur voor de stad. Hier ligt een fijnmaziger netwerk van groen- en blauwstructuren overheen welke deze grootheden verbindt met aanpalende wijken en de binnenstad. De visie is verder uitgebouwd op basis van ruimtelijke kenmerken. De verschillende lagen hebben een overlap en zorgen zo voor een integrale groenblauwe structuur. De wijzigingen in dit bestemmingsplan zijn in overeenstemming met genoemd beleid. Een uitzondering hierop vormt de ontwikkeling aan de Stadhouderslaan 121. Zoals in paragraaf 2.4.2 is benoemd heeft hier een belangenafweging plaatsgevonden waarbij rekening is gehouden met de GroenBlauwe structuurvisie maar waar aan het aspect veiligheid en het maatschappelijk belang meer waarde werd toegekend.

3.3.9 Groenvisie 'Buitengewoon groen'

De groenvisie 'Buitengewoon groen' is op 2 februari 2021 vastgesteld. De Groenvisie sluit aan op de GroenBlauwe Structuurvisie uit 2015 en de daarin gegeven beschrijving van de aanwezige groenstructuren en bijbehorende doelstellingen. Aanvullend op de GroenBlauwe Structuurvisie gaat de Groenvisie dieper in op de waarde van het groen in de leefomgeving.

Schiedam beschikt over een groot aantal mooie, groene voorzieningen, zoals parken, groene- en blauwe verbindingszones, boomstructuren en groene gebieden in de wijken. Tegen de achtergrond van alle stedelijke ontwikkelingen wordt dit bestaande groen gekoesterd. Verspreid over de stad liggen tal van kansen om het groen als belangrijke pijler voor een aantrekkelijke woon- en leefomgeving niet alleen te handhaven, maar vooral te versterken, zowel in kwantitatieve als kwalitatieve zin.

Het 'groen' vormt een belangrijk onderdeel van de ruimtelijke kwaliteit van de stad. Schiedam wil haar kwaliteiten als aantrekkelijke, groene stad beter presenteren en verder uitbouwen. De komende jaren wil de stad werken aan het versterken van de kwaliteit en toekomstbestendigheid van de openbare ruimte. Groen is van groot belang voor de kwaliteit van de openbare ruimte en het tegengaan van wateroverlast en hittestress. Daarnaast draagt groen bij aan het versterken van de ecologische waarde en de biodiversiteit. De kwaliteit en belevingswaarde van het groen wordt uitgebreid door het toevoegen en versterken van groene, ecologische verbindingen tussen de grotere groengebieden.

De wijzigingen in dit bestemmingsplan zijn in overeenstemming met de Groenvisie.

3.3.10 Hoogbouwvisie

In 2008 is de Hoogbouwvisie Schiedam vastgesteld. De grootstedelijke opgave waar Schiedam voor staat richt zich minder op verdere stedelijke uitbreiding en meer op stedelijke herontwikkeling en herstructurering binnen haar gemeentegrenzen. Bij deze stadsvernieuwing komt regelmatig de wens tot hoogbouwinitiatieven vanuit de markt naar voren. De nota is bedoeld om de vraag naar hoogbouw te structureren. Daarbij is een drietal opgaven te onderscheiden: versterken van de eigen identiteit van Schiedam, Schiedam in een dynamisch evenwicht en de groenblauwe slinger van Midden-Delfland naar de Nieuwe Maas. In de nota wordt hoogbouw nabij OV-knooppunten zoals het stationsgebied voorgesteld aangezien de toepassing van hoogbouw positief is voor de identiteit en het functioneren van de stad.

De wijzigingen in dit bestemmingsplan zijn in overeenstemming met de Hoogbouwvisie.

3.3.11 Molenbeleid Schiedam

De gemeenteraad heeft op 15 september 2003 de nota 'Molenbeleid Schiedam' vastgesteld. De nota heeft tot doel de vijf Schiedam kenmerkende stellingmolens, de hoogste stellingmolens in de wereld, te beschermen tegen ontwikkelingen in de omgeving die de vrije windvang en het uitzicht op de molens kunnen beperken. Op grond van het Schiedamse molenbeleid geldt dat binnen een straal van 100 meter van de molen geen nieuwe bebouwing mag worden opgericht of beplanting mag worden aangebracht welke hoger is dan de onderste punt van de verticaal staande wiek van de molen. Binnen een straal van 100 tot 400 meter is geen nieuwe bebouwing of beplanting toegelaten welke hoger is dan de hoogte van de verticaal staande wiek vermeerderd met 1/50ste van de afstand tussen de bebouwing en beplanting en de molen. Deze regels zijn opgenomen in het bestemmingsplan met zogenaamde molenbiotopen. In deze verzamelherziening is de omissie, die in het bestemmingsplan 'Nieuwland 2016' is geslopen, hersteld.

De wijzigingen in dit bestemmingsplan zijn in overeenstemming met het Molenbeleid Schiedam.

3.3.12 Nota 'Werkwijze Snippergroen'

Als gevolg van ontwikkeling in het verleden, veranderde inzichten en/of herinrichtingen van het openbaar gebied, zijn er in de stad veel plekken ontstaan waarvan niet duidelijk is of het aanwezige openbaar groen nog een belangrijke openbare functie heeft, of dat het betreffende groen (alsnog) voor uitgifte aan derden in aanmerking komt ('onduidelijk openbaar groen'). De aanwezigheid van 'onduidelijk openbaar groen' brengt dan ook regelmatig de vraag van burgers met zich mee om uitgifte van een deel van dit groen voor privégebruik.

De nota is bedoeld om te komen tot heldere en consistente richtlijnen omtrent de uitgifte en handhaving van snippergroen, alsmede het ontstaan van nieuw 'onduidelijk' (snipper)groen te voorkomen. Zo komt er duidelijkheid voor de Schiedamse burgers, wordt helder welk groen door de gemeente beheerd en onderhouden moet worden en krijgt het onderwerp snippergroen bovendien een plek in de integrale afweging die plaatsvindt bij plannen inzake het onderhoud van de openbare ruimte en bij stedelijke ontwikkelingen. De uitgifte van het 'snippergroen' is getoetst aan de uitgangspunten van deze nota. Het doorvertalen van het uitgegeven snippergroen in het bestemmingsplan is één van de afspraken die in het kader van dit beleid is gemaakt. Dit omdat het groen vrijwel altijd ene openbare functie heeft, terwijl dit omgezet moet worden naar een private functie, zoals een woon- of tuinbestemming. De afweging hierover komt aan de orde, indien bijvoorbeeld een particulier een verzoek indient omtrent de uitgifte van snippergroen nabij zijn/ haar woning. In dat geval dient voor zowel zijn/ haar perceel als ook voor de naburige percelen (of eventueel ook woonblokken in de directe omgeving) een afweging te worden gemaakt over het al dan niet uitgeven van snippergroen en de omzetting van de bestemming naar "Wonen" en/of "Tuin".

De wijzigingen in dit bestemmingsplan zijn in overeenstemming met de Nota werkwijze snippergroen.

Hoofdstuk 4 Planologische en milieutechnische randvoorwaarden

Het al dan niet voldoen aan verschillende planologische en milieutechnische randvoorwaarden en uitgangspunten is bepalend voor de vraag of een nieuw bestemmingsplan ook daadwerkelijk uitvoerbaar is. In dit hoofdstuk wordt de uitvoerbaarheid van het bestemmingsplan getoetst op planologische en milieutechnische randvoorwaarden.

4.1 Duurzaamheid

Het relevante gemeentelijk beleid staat onder andere in het Klimaatbeleid en het Klimaatadaptatieplan. De wijzigingen in dit bestemmingsplan zijn niet in strijd met het genoemd beleid en zijn uitvoerbaar.

4.2 Waterparagraaf

Ten behoeve van de uitvoering van de wettelijk verplichte watertoets moet in samenhang met een bestemmingsplan een waterparagraaf worden opgesteld. Het bestemmingsplan biedt, in vergelijking tot het voorheen geldende bestemmingsplan, geen ruimere mogelijkheden om verhardingen aan te brengen. Het plan heeft daarmee geen planologisch effect op het watervasthoudend vermogen binnen het plangebied. In het kader van de diverse bestemmingsplannen, als genoemd in paragraaf 1.3, zijn in het recente verleden reeds waterparagrafen opgesteld. Aangezien het bestemmingsplan niet leidt tot een wijziging van de daarin beoordeelde wateraspecten wordt aanvullend verwezen naar deze waterparagrafen.

Dit bestemmingsplan voorziet, voor wat betreft de uitgifte van het snippergroen, in het wijzigen van gronden met een openbare functie naar een tuin- of woonbestemming. Het herbestemmen van de gronden is niet van significante invloed op het watervasthoudend vermogen in het gebied. Voor wat betreft beheer en onderhoud van het watersysteem betekent het plan niet dat als gevolg hiervan wijzigingen noodzakelijk zijn. De verantwoordelijkheid voor beheer en onderhoud van openbaar gebied wijzigt niet.

Het Hoogheemraadschap van Delfland heeft in 2022 een nieuwe legger vastgesteld die in deze verzamelherziening ongewijzigd is overgenomen.

4.3 Natuurbescherming

Groenvoorzieningen

Het relevante gemeentelijk beleid staat in de Groenvisie 'Buitengewoon groen', GroenBlauwe Structuurvisie en de Nota's 'Werkwijze Snippergroen' en 'Aanvulling Werkwijze Snippergroen'. Het bestemmingsplan is hiermee in overeenstemming.

Natuurbescherming

De Wet natuurbescherming vormt het voornaamste beleidsmatige toetsingskader op het gebied van de ecologische soortenbescherming en ecologische gebiedsbescherming. Deze wet is op 1 januari 2017 in werking getreden en vervangt de Flora- en Faunawet, de Natuurbeschermingswet 1998 en de Boswet. In de toelichting van een bestemmingsplan moeten de gevolgen van het bestemmingsplan voor ecologische waarden in beeld worden gebracht, zodat aannemelijk kan worden gemaakt of de ontwikkeling voldoet aan de op grond van de Wet natuurbescherming gestelde regels.

Het bestemmingsplan leidt niet tot enige ruimtelijke ontwikkelingen welke van invloed zijn op de duurzame instandhouding van enige aanwezige flora en fauna. Hierbij is ook het aspect stikstof begrepen. Aanvullend wordt kortheidshalve verwezen naar de flora- en faunaparagrafen van de betreffende bestemmingsplannen en naar de ruimtelijke onderbouwingen van de betreffende omgevingsvergunningen.

4.4 Externe veiligheid

Bij Externe Veiligheid (EV) gaat het om de gevaren die de directe omgeving loopt in het geval er iets mis mocht gaan tijdens de productie, het behandelen of het vervoer van gevaarlijke stoffen. De daaraan verbonden risico's moeten aanvaardbaar blijven. Binnen de EV worden twee normstellingen gehanteerd:

  • het Plaatsgebonden Risico (PR) richt zich vooral op de te realiseren basisveiligheid voor burgers;
  • het Groepsrisico (GR) stelt beperkingen aan de maatschappelijke ontwrichting als gevolg van calamiteiten met gevaarlijke stoffen.

Er wordt onderscheid gemaakt tussen:

  • kwetsbare objecten, zoals gebouwen bestemd voor het verblijf, al dan niet gedurende een gedeelte van de dag, van minderjarigen, ouderen, zieken of gehandicapten; gebouwen waarin doorgaans grote aantallen personen gedurende een groot gedeelte van de dag aanwezig zijn; kampeer- en andere recreatieterreinen bestemd voor het verblijf van meer dan 50 personen gedurende meerdere aaneengesloten dagen;
  • beperkt kwetsbare objecten, zoals kampeerterreinen en andere terreinen bestemd voor recreatieve doeleinden, voor zover zij geen kwetsbaar object zijn.

Het gemeentelijk beleid staat in de 'Visie Externe veiligheid 2012-2020'.

Kwetsbare objecten zijn niet toegestaan binnen de 10-6 PR-contour rond inrichtingen waarin opslag/verwerking van gevaarlijke stoffen plaatsvindt en langs transportroutes (weg, spoor, water, buisleiding) waarover gevaarlijke stoffen worden vervoerd. In het Besluit externe veiligheid inrichtingen (Bevi), in geval van inrichtingen, het Besluit externe veiligheid transportroutes (Bevt), in geval van transportroutes voor gevaarlijke stoffen, en het Besluit externe veiligheid buisleidingen (Bevb), in geval van buisleidingen is opgenomen dat voor iedere toename van het GR een verantwoordingsplicht geldt, ook als de verandering geen overschrijding van de oriëntatiewaarde veroorzaakt.

Het bestemmingsplan kent geen locaties waarvoor een verantwoordingsplicht geldt.

4.5 Geluid

Op grond van de Wet geluidhinder zijn normen gesteld met betrekking tot de maximale geluidsbelasting op de gevel van geluidgevoelige objecten en terreinen. Geluidgevoelige objecten zijn woningen, onderwijsgebouwen, ziekenhuizen, verpleeghuizen, verzorgingstehuizen, psychiatrische inrichtingen en kinderdagverblijven. Geluidgevoelige terreinen zijn woonwagen standplaatsen en bestemde ligplaatsen voor woonschepen. Op grond van de Wet geluidhinder moet aan deze normen worden voldaan indien deze binnen een wettelijke geluidszone zijn gelegen. Het bestemmingsplan laat geen nieuwe woningen of geluidgevoelige objecten toe ten opzichte van de bestaande en vergunde situatie.

4.6 Luchtkwaliteit

De Europese richtlijnen voor luchtkwaliteit zijn geïmplementeerd in de Wet luchtkwaliteit (hoofdstuk 5, titel 5.2 van de Wet milieubeheer). De wet bevat grenswaarden voor zwaveldioxide, stikstofdioxide en stikstofoxiden, fijnstof, lood, koolmonoxide en benzeen. Hierbij zijn in de ruimtelijke ordeningspraktijk langs wegen vooral de grenswaarden voor stikstofdioxide (jaargemiddelde) en fijnstof (jaar- en daggemiddelde) van belang. Voor NO2 en PM10 geldt een grenswaarde van maximaal 40 µg/m² als jaargemiddelde concentratie. Voor PM2,5 geldt een maximale grenswaarde van 25,0 µg/m².

De wijziging van de bestemming van de gronden van een (openbare) groenbestemming naar een tuinbestemming heeft geen effect op de luchtkwaliteit. Evenmin hebben de wijzigingen in dit bestemmingsplan (eerder verleende omgevingsvergunningen, verbeteringen vastgestelde plannen) effect op genoemd beleid. De Wet luchtkwaliteit is daarmee geen belemmering voor uitvoering van het bestemmingsplan.

4.7 Milieuhinder bedrijvigheid

In een gebied met een menging van hindergevoelige en hinderveroorzakende functies moeten deze functies met elkaar rekening houden, zodat ze elkaar onderling niet onacceptabel hinderen. Dat gebeurt in eerste instantie door voldoende afstand tot elkaar aan te houden met behulp van de richtafstanden zoals opgenomen in de Staat van bedrijfsactiviteiten op basis van de VNG-brochure Bedrijven en milieuzonering. De richtafstanden worden daarbij uitgedrukt in categorieën. Ook in dit bestemmingsplan is deze staat als bijlage opgenomen, waarbij er in de regels bij de betreffende functies wordt verwezen naar de toegestane categorie.

Het bestemmingsplan maakt geen hinderveroorzakende functies (bijvoorbeeld bedrijven) mogelijk. Er is daarom geen belemmering om dit bestemmingsplan vast te stellen.

4.8 Milieueffectrapportage

Op grond van de Wet milieubeheer worden activiteiten aangewezen welke belangrijke nadelige gevolgen kunnen hebben voor het milieu, of waarvoor beoordeeld moet worden of deze activiteiten nadelige invloed hebben. In onderdeel C en D van de bijlage bij het Besluit milieueffectrapportage is aangegeven welke activiteiten in het kader van een bestemmingsplan planMER-plichtig, projectMER-plichtig of MER-beoordelingsplichtig zijn. Voor deze activiteiten zijn in het Besluit milieueffectrapportage drempelwaarden opgenomen. Daarnaast dient het bevoegd gezag bij de genoemde activiteiten welke niet aan de drempelwaarden voldoen, te beoordelen of de activiteit belangrijke nadelige gevolgen voor het milieu kan hebben (gelet op kenmerken, locatie en potentiële effecten).

Het bestemmingsplan maakt geen activiteit mogelijk als genoemd in het Besluit milieueffectrapportage. Hierdoor is geen nadere beoordeling nodig.

4.9 Archeologie

De gemeente Schiedam kent een rijke bewoningsgeschiedenis. Niet alleen de nu nog zichtbare gebouwde monumenten zijn daar het overtuigend bewijs van, maar ook de in de ondergrond aanwezige sporen en vondsten. De gemeente Schiedam heeft beleidsinstrumenten ontwikkeld, waaronder de beleidsnota 'Archeologische Monumentenzorg gemeente Schiedam' en de 'Archeologische Waardenkaart Schiedam' (mei 2008).

Voor het gehele plangebied geldt gelet op de verwachte aanwezige waarden de dubbelbestemming 'Waarde - Archeologie'. Op grond van deze dubbelbestemming geldt een bouwverbod (met afwijkingsbevoegdheid) en een vereiste tot het hebben van een omgevingsvergunning voor werken en werkzaamheden met een oppervlak van 100 m2 en 1,0 meter beneden maaiveld. Worden deze maten tegelijkertijd overschreden dan is een archeologisch onderzoek noodzakelijk om af te kunnen wijken van het bouwverbod of om de aanlegvergunning te kunnen verlenen. Hiermee is gewaarborgd dat de archeologische waarden niet in het geding zijn. Door het opnemen van een enkele archeologische dubbelbestemming wordt voorkomen dat bij deze verzamelherziening een veelvoud aan archeologische dubbelbestemmingen van kracht wordt die in de onderliggende bestemmingsplannen zijn opgenomen.

4.10 Conclusie

Gelet op de voorgaande paragrafen zijn er geen planologisch en/of milieutechnische zaken die de uitvoerbaarheid van dit bestemmingsplan in de weg staan. Belangrijk daarbij is dat de grotere ontwikkelingen reeds planologisch beoordeeld zijn en ongewijzigd in deze verzamelherziening worden overgenomen.

Hoofdstuk 5 Juridische aspecten

5.1 Algemene juridische opzet

In dit bestemmingsplan wordt de planologisch-juridische basis gelegd voor de door te voeren wijzigingen. Het bestemmingsplan heeft een belangrijke functie als toetsingskader voor bouwaanvragen en het toekomstige gebruik van de gronden en gebouwen. Het plan is opgesteld op basis van de SVBP2012 en het IMRO 2012.

Op de bijbehorende verbeelding is te zien waar en welke bestemmingen van toepassing zijn. Eveneens is op de verbeelding de exacte omvang en ligging van het plangebied vastgelegd. De regels behorende bij het bestemmingsplan zijn gebaseerd op standaardregels van de gemeente Schiedam. De standaardregels vormen de basis voor keuzes met betrekking tot gebruik van bestemmingen en aanduidingen in het bestemmingsplan. Wijzigingen ten opzichte van deze standaardregels vloeien voort uit bepaalde situaties die zich in het plangebied voordoen.

Opbouw regels
De regels zijn als volgt gestructureerd:

  • Hoofdstuk 1 van de regels geeft de algemene bepalingen weer. Het betreft de begripsbepalingen (artikel 1) waarin de in het plan voorkomende begrippen worden gedefinieerd. In artikel 2 (wijze van meten) wordt aangegeven hoe de voorgeschreven maatvoering (zoals goothoogte, bouwhoogte, inhoud en oppervlakte) in het plan gemeten moet worden.
  • In hoofdstuk 2 zijn de in het plan voorkomende bestemmingen geregeld. Per bestemming is bepaald welk gebruik van de gronden is toegestaan en welke bebouwingsregels gelden. Tevens zijn waar mogelijk flexibiliteitsbepalingen opgenomen.
  • In hoofdstuk 3 staan aanvullende bepalingen die, in aanvulling op de bestemmingsbepalingen, voor het hele plangebied gelden. Hierbij kan worden gedacht aan de algemene afwijkingsregeling, die het college van burgemeester en wethouders de bevoegdheid geeft om op ondergeschikte punten van de regels in hoofdstuk 2 af te wijken;
  • Hoofdstuk 4 van de regels heeft betrekking op het overgangsrecht en de slotbepaling.

5.2 Bestemmingen

5.2.1 Agrarisch met Waarden - Natuur- en Landschapswaarden

In het noordwesten van de gemeente is een waterkering afgewaardeerd. De bestemming 'Agrarisch met Waarden - Natuur- en Landschapswaarden' wordt opnieuw op deze strook grond gelegd.

5.2.2 Bedrijf

Deze bestemming is toegekend aan het gedeelte van het tankstation aan de Vlaardingerdijk dat in deze verzamelherziening is opgenomen. Dit in verband met de versmalling van de waterkering ter plekke. Het warmestation aan de Groenoordstraat heeft de bestemming Bedrijf-Nutsvoorziening gekregen.

5.2.3 Bedrijventerrein

De in het plangebied aanwezige bedrijfsgronden zijn bestemd als bedrijventerrein. Het gaat hier alleen om de zone gelegen aan de Jan Evertsenweg. Hier is de aanduiding bedrijfswoning verwijderd en zijn alle andere aanduidingen overgenomen uit het bestemmingsplan 'Havens' en 'Havens, eerste herziening'.

5.2.4 Gemengd

Het project Terras aan de Schie aan het Stationsplein heeft de bestemming Gemengd gekregen. Dit omdat in het projectgebied woningen, kantoorruimte en ondergeschikte detailhandel aanwezig is. Verder is de bestemming 'Gemengd-1' over genomen uit het bestemmingsplan 'West' in verband met het versmallen van de waterkering.

5.2.5 Groen

De groenbestemmingen uit de bestemmingsplannen 'Nieuwland 2016' en 'West' zijn opnieuw opgenomen in verband met de versmalling van de waterkering.

5.2.6 Horeca

De horecabestemmingen uit het bestemmingsplan 'West' zijn opnieuw opgenomen in verband met de versmalling van de waterkering.

5.2.7 Maatschappelijk-Begraafplaats

Aan de Vlaardingerdijk is de zone van de waterkering versmald. Hierdoor is de bestemming 'Maatschappelijk-Begraafplaats' uit het plan Nieuwland 2016 ter plekke van de begraafplaats opnieuw opgenomen.

5.2.8 Sport

Ter plaatse van de bestemming 'Sport' is een uitbreiding vergund van de tennisbaan aan de Stadhouderslaan 121. De bestaande regeling in het bestemmingsplan 'West' is hierop van toepassing verklaard.

5.2.9 Tuin

De voortuinen bij de karakteristieke woningen langs de Schiedamseweg hebben, conform het gelden bestemmingsplan, de bestemming "Tuin" gekregen. Op deze gronden is het gewenst om het groene karakter te behouden. Ook is bij een aantal percelen uitgegeven snippergroen deze tuinbestemming opgenomen. Het gaat dan veelal om percelen die niet aan de achterzijde zijn gelegen.

5.2.10 Verkeer

Er is een onderscheid gemaakt in wegen met voornamelijk een stroomfunctie en wegen die als verblijfsgebied zijn ingericht. De wegen met een stroomfunctie zijn bestemd als 'Verkeer'. De overige wegen en gebieden waar de verblijfsfunctie overheerst zijn bestemd als 'Verkeer - Verblijfsgebied' bestemd. Ook de fietsenstalling aan de Tweede Tuinsingel heeft de bestemming Verkeers-verblijfsgebied gekregen met een bouwblok op maat. Op de verbeelding is een maximale bouwhoogte van 3,0 meter aangegeven met een aanduiding 'fietsenstalling'.

5.2.11 Verkeer - Railverkeer

Gelet op de harmonisatie van de doeleindenomschrijving in het stationsgebied is ook de bestemming 'Verkeer-Railverkeer' opgenomen in deze verzamelherziening. Binnen de bestemming 'Verkeer-Railverkeer' zijn het station met bijbehorende (kleinschalige) voorzieningen, zoals horeca, detailhandel (niet zijnde grootschalige detailhandel), kantoren, taxistandplaats en/of een informatiepunt" mogelijk. Ook de specifieke aanduiding voor het tramverkeer is overgenomen.

5.2.12 Water

Binnen de groen- en verkeersbestemmingen mogen watergangen gerealiseerd worden. De belangrijkste watergangen zijn in de bestemming 'Water' opgenomen. Het is binnen deze bestemming toegestaan om bruggen en duikers te realiseren. Daarnaast kunnen de oevers binnen deze bestemming op een ecologische wijze ingericht worden. Binnen deze bestemming mogen geen gebouwen worden gerealiseerd.

5.2.13 Woonbestemmingen

In deze verzamelherziening zijn diverse woonbestemmingen opgenomen. Zo is in deze verzamelherziening de wijk Bijdorp opgenomen. De systematiek van het bestemmingsplan Harga wordt hierin ongewijzigd overgenomen, met toevoeging van maximale goot- en bouwhoogten. Dit betekent dat de bestemming 'Wonen-1' (vrijstaande woningen), 'Wonen-2' (halfvrijstaande woningen) en 'Wonen-3' (aaneengebouwde woningen) in Bijdorp te vinden zijn. Ook de Westpolderstraat 8 is bestemd op basis van deze systematiek. Hetzelfde geldt voor stukken uit het bestemmingsplan 'West' die door de versmalling van de waterkering opnieuw zijn opgenomen.

Ook ligt de bestemming "Wonen' op percelen die uitgegeven zijn als snippergroen. Deze percelen liggen veelal aan de achterzijde van de woning. Daarnaast is de bestemming 'Wonen' ook op andere percelen gelegd. Zoals aan de Snelliussingel en de wijziging van een kantoorbestemming naar een woonbestemming aan de Parkweg 224-226. In dat laatste geval is ook de gebiedsgerichte aanduiding voor maatschappelijke doeleinden overgenomen.

5.3 Dubbelbestemmingen

5.3.1 Leiding - Water

De in het plangebied aanwezige drinkwatertransportleiding is met een dubbelbestemming 'Leiding' aangeduidt op de verbeelding. Ter plaatse van deze leidingen geldt binnen de op de verbeelding aangegeven belemmeringszone een bouwverbod. Voor het aanleggen van werken en werkzaamheden binnen deze dubbelbestemming is een omgevingsvergunning vereist. Afwijken van het bouwverbod of het verlenen van een omgevingsvergunning is mogelijk indien de belangen van de leidingbeheerder niet worden geschaad.

5.3.2 Waarde - Archeologie

Voor het gehele plangebied geldt één archeologische (verwachtings)waarde. Deze verwachtingswaarde wordt beschermd door de dubbelbestemming 'Waarde - Archeologie'. Binnen deze dubbelbestemming is in de regels een bouwverbod en aanlegvergunning gegeven voor bouw- en graafwerkzaamheden welke de in de regels genoemde oppervlakte en dieptemaat overschrijden. Ontheffing of aanlegvergunning kan pas worden verleend nadat een archeologisch onderzoek is uitgevoerd. Aan het verlenen van een ontheffing of aanlegvergunning kunnen aanvullende voorwaarden worden verbonden. Aanvullend is een wijzigingsbevoegdheid opgenomen waardoor deze dubbelbestemming bij het verkrijgen van nadere informatie geheel of gedeeltelijk kan worden verwijderd.

5.3.3 Waarde - Beschermd Stadsgezicht A

In het bestemmingsplan is de dubbelbestemming opgenomen om de waarden van het beschermd stadsgezicht te beschermen. Dit komt oorspronkelijk uit het bestemmingsplan 'Binnenstad 2014'.

De specifieke bouwregels binnen zone A van het beschermd stadsgezicht betreffen:

  • de ligging van de voorgevel;
  • het aaneengesloten bouwen van hoofdgebouwen en het bouwen in de perceelrichting;
  • het hebben van een kap en de kaprichting;
  • de maximale goot- en bouwhoogte en de minimale hoogte van de begane grondlaag;
  • dakterrassen, dakkapellen en dakopbouwen;
  • de dakhelling van aanbouwen, bijgebouwen en overkappingen.

Van de verschillende bouwregels kan worden afgeweken, indien de waarden van het beschermd stadsgezicht niet worden aangetast. Hiermee worden de ontwikkelingsmogelijkheden van de binnenstad niet op slot gezet, maar worden de cultuurhistorische waarden expliciet betrokken bij nieuwe ontwikkelingen.

5.3.4 Waarde - Cultuurhistorie

In het plangebied is deze dubbelbestemming, overeenkomstig het van kracht zijnde bestemmingsplan, gegeven aan het restant van de romp van de "Molen van Bregman" aan de Schiedamseweg 184. Door het toekennen van deze dubbelbestemming is er een sloop- en aanlegvergunningstelsel van kracht om de cultuurhistorische waarden te beschermen.

5.3.5 Waarde - Natuur en landschap

In het plangebied is de begraafplaats aan de Vlaardingerdijk opgenomen. De begraafplaats is vanwege landschappelijke- en ecologische waarden opgenomen in de Groen Blauwe Structuurvisie. Daarom is alleen de bestaande bebouwing op dezelfde plaats toegestaan. Om de landschappelijke en ecologische waarden verder te beschermen is over beide zones ook de bestemming 'Waarde - Natuur en landschap' gelegd. Middels het in deze bestemming opgenomen vergunningenstelsel worden de bestaande waarden beschermd.

5.3.6 Waterstaat - Waterkering

De waterstaatsfunctie is in het bestemmingsplan bestemd als 'Waterstaat -Waterkering'. Deze

dubbelbestemming dient ter bescherming van de waterkering. In de regels is bepaald dat alleen

gebouwd mag worden volgens de van kracht zijnde bestemming van deze gronden, mits de

waterstaatsbelangen zich daartegen niet verzetten. Bouwen ten behoeve van een van kracht zijnde bestemming is pas mogelijk na toestemming van burgemeester en wethouders, waarbij advies wordt ingewonnen bij het Hoogheemraadschap van Delfland. Een vergelijkbare regeling geldt voor het verkrijgen van een omgevingsvergunning voor de aanleg van werken en werkzaamheden.

5.4 Overige bepalingen

5.4.1 Algemene aanduidingen

Molenbiotoop

Ter bescherming van de vrije windvang en het zicht op de molens geldt rond de in het plangebied

aanwezige molens een beschermingszone ('Vrijwaringszone - molenbiotoop'). Binnen een zone

van 100 meter van een molen zijn geen gebouwen toegestaan die hoger zijn dan de onderste punt

van de verticaal staande wiek. In een zone van 100 tot 400 meter zijn geen bouwwerken

toegestaan die hoger zijn dan de onderste punt van de verticaal staande wiek plus 1/50ste van de

afstand tussen het bouwwerk en het hart van de molen. Van deze regel kan worden afgeweken

indien de vrije windvang al beperkt is en deze niet onevenredig verder wordt beperkt. De

stichting De Schiedamse Molens wordt bij het toepassen van een afwijking gehoord. Overigens

moeten de bouwregels uit de andere bestemmingen wel in acht worden genomen.

Geluidzone

Het plangebied ligt binnen de geluidszone van meerdere gezoneerde industrieterreinen, verkeerswegen en spoorwegen. Deze zone is op de verbeelding aangeduid als 'Geluidzone', eventueel met de toevoeging industrie of wegverkeer. In overeenstemming met het bepaalde in de Wet geluidhinder geldt dat binnen deze geluidszone geen nieuwe woningen of andere geluidsgevoelige objecten mogen worden gebouwd, tenzij wordt voldaan aan de voorkeursgrenswaarde voor geluid of een verkregen hogere (geluids)waarde.

Gezoneerd industrieterrein

Het gebied rond de Wilhelminahaven is een gezoneerd industrieterrein als bedoeld in de Wet geluidhinder. Binnen deze zone zijn geluidzoneringsplichtige bedrijven toegelaten, terwijl woningen en andere geluidgevoelige bestemmingen zijn uitgesloten. Op de verbeelding is deze zone aangeduid als 'Milieuzone - gezoneerd industrieterrein'.

Luchtvaartverkeerszone

Tot slot is een aanduiding opgenomen voor de luchtvaartverkeerszone die ook reeds onderdeel was van het bestemmingsplan Kethel e.o.

5.4.2 Algemene afwijkingsregels

In het bestemmingsplan is zoveel mogelijk met recht bestemd. In aanvulling op de afwijkingsmogelijkheden bij de individuele bestemmingen is een aantal 'Algemene afwijkingsregels' opgenomen. Om te voorkomen dat kleine meetfouten tot grote gevolgen leiden en om enigszins flexibel met maatvoeringen om te kunnen gaan, zijn enkele afwijkingsmogelijkheden opgenomen om in geringe mate te kunnen afwijken van genoemde maten, oppervlaktes enzovoorts. Daarnaast zijn afwijkingen opgenomen ten behoeve van het oprichten van openbare nutsdoeleinden en geluidwerende voorzieningen.

5.4.3 Algemene gebruiksregels

Het toegelaten gebruik van de gronden is geregeld in de individuele bestemmingen. Een aantal zaken geldt uniform voor het gehele plangebied en zijn daarom benoemd in de 'Algemene gebruiksregels'. Een voorbeeld hiervan zijn vormen van verboden gebruik.

5.4.4 Parkeren, laden, lossen en stallen

Parkeren

Bij ruimtelijke ontwikkelingen geldt de vereiste dat, om parkeerproblemen te voorkomen, voorzien moet worden in voldoende parkeergelegenheid. Deze vereiste vond voorheen zijn grondslag in de gemeentelijke bouwverordening. Door een wijziging in de wet heeft de gemeentelijke bouwverordening op dit punt zijn werking verloren. Dit neemt niet weg dat het wenselijk blijft dat bij nieuwe ontwikkelingen voldoende parkeergelegenheid wordt gerealiseerd. Om deze reden is in de planregels een regeling met betrekking tot parkeren opgenomen.

De hoofdregel is dat bij nieuwe ontwikkelingen voldoende parkeergelegenheid wordt gerealiseerd op eigen terrein. Onder een nieuwe ontwikkeling wordt daarbij zowel het oprichten van bebouwing verstaan, als het veranderen, wijzigen of uitbreiden van bestaand gebruik. De vraag of wordt voorzien in voldoende parkeergelegenheid wordt beantwoord op basis van de bij de regels gevoegde parkeernormen, de berekenwijze van de parkeerbehoefte uit de door het college vastgestelde Mobiliteitsnormen 2022 en de uitgebreide jurisprudentie die op dit onderdeel is ontstaan. Daarbij geldt aanvullend dat de parkeerplaatsen qua aard, plaats en inrichting bruikbaar en bereikbaar moeten zijn. De voorschriften uit het Handboek Openbare Ruimte vormen hierbij het uitgangspunt.

De regeling kent een afwijkingsbevoegdheid voor die gevallen dat het niet mogelijk of wenselijk is de parkeergelegenheid (volledig) op eigen terrein te realiseren, en op een 'andere wijze' wordt voorzien in voldoende parkeergelegenheid. Deze situatie doet zich voor indien:

  • a. nieuwe parkeerplaatsen worden aangelegd in het openbaar gebied. Hierbij geldt dat dit niet ten koste mag gaan van bestaande of geplande parkeervoorzieningen, de aanvrager geen uniek gebruiksrecht heeft op deze nieuwe parkeerplaatsen en de bijbehorende aanlegkosten voor de aanvrager zijn.
  • b. bestaande parkeerplaatsen worden gebruikte in het openbaar gebied. Dit is mogelijk indien in de bestaande situatie, binnen een straal van 300 meter, sprake is van een overschot aan parkeerplaatsen, waarbij eveneens geldt dat de aanvrager geen uniek gebruiksrecht verkrijgt voor deze parkeerplaatsen. Ter compensatie dient voor deze reeds door de gemeente aangelegde en betaalde parkeerplaatsen een bedrag te worden betaald van € 10.000,-- per parkeerplaats.
  • c. duurzaam gebruik van parkeerplaatsen in een al dan niet zelf gerealiseerde naburige parkeervoorziening op maximaal 300 meter afstand. Voorwaarde hierbij is dat aangetoond moet worden dat deze parkeerplaatsen langdurig (minimaal 10 jaar) ten behoeve van de nieuwe ontwikkeling gebruikt kunnen worden.

Indien het niet mogelijk is om voldoende parkeergelegenheid op eigen terrein te realiseren en ook op een 'andere wijze' niet in voldoende parkeergelegenheid kan worden voorzien bestaat de mogelijkheid dat sprake is van uitwisselbaarheid van parkeerplaatsen. Deze situatie kan zich voordoen indien:

  • a. woningbouw (overwegend) wordt gerealiseerd binnen 500 meter van station Schiedam Centrum of 300 meter van station Schiedam Nieuwland, aangezien bewoners in de directe nabijheid van deze OV-knooppunten zich kenmerken door een mindere auto- en een grotere OV-afhankelijkheid.
  • b. gemeenschappelijke parkeervoorzieningen worden gerealiseerd, welke voorzien in de parkeerbehoefte van een afgebakend gebied (Parkeren in balans).
  • c. de ontwikkeling een buurtvoorziening betreft, waarbij het aannemelijk is dat de bezoekers geen gebruik zullen maken van de auto.
  • d. mobiliteit op een andere wijze wordt ingevuld, bijvoorbeeld door het gebruik van deelauto's of andere (innovatieve) mobiliteitsvormen.
  • e. bij de verkoop van een nieuwe woning, blijkens de koopakte, wordt afgezien van een eigen parkeerplaats.

Tot slot kent de regeling een afwijkingsbevoegdheid voor die situaties dat niet kan worden voorzien in voldoende parkeergelegenheid en geen sprake is van uitwisselbaarheid, maar naar het oordeel van het college sprake is van een ontwikkeling met een bijzonder gemeentelijk belang. Het gaat hierbij om zeer uitzonderlijke situaties, waarbij met gegronde redenen is aangetoond, dat het niet mogelijk is de vereiste parkeergelegenheid te realiseren. Het betreft hierbij ontwikkelingen die zodanig gewenst zijn dat het uit economisch oogpunt of uit het oogpunt van milieu, hinder of woonomgeving, gedeeltelijk of volledig vrijstelling van de parkeernorm wordt gegeven.

Laden en lossen

Voor diverse gebruiksfuncties is, uit het oogpunt van doorstroming en gebruik van de openbare weg, een voorziening voor het laden en lossen vereist. Het is wenselijk om een dergelijke voorziening te hebben, indien de aard en omvang van een ruimtelijke ontwikkelingen daar aanleiding toe geeft. Gelet op de grote verscheidenheid aan ontwikkelingen is het niet mogelijk hiervoor op voorhand normen op te nemen. De aard, omvang, situering en noodzaak van deze voorziening wordt om deze reden op basis van de specifieke eigenschappen van een ruimtelijke ontwikkeling bepaald. Deze vereiste geldt niet voor woonfuncties.

Fietsparkeren

Het gebruik van de fiets maakt dat bij ruimtelijke ontwikkelingen ook ruimte moet worden gereserveerd voor het stallen van fietsen. Deze vereiste gold voorheen op grond van het Bouwbesluit. Gelet op het hoge fietsgebruik en om wildparkeren van fietsen te voorkomen is het wenselijk dergelijke stallingsvoorzieningen te hebben. De grote verscheidenheid aan ontwikkelingen maakt dat het niet mogelijk is hiervoor op voorhand normen op te nemen. De aard, omvang, situering en noodzaak van deze voorziening wordt om deze reden op basis van de specifieke eigenschappen van een ruimtelijke ontwikkeling bepaald. Deze vereiste geldt niet voor woonfuncties, omdat voor woningen op grond van het Bouwbesluit nog wel een verplichting geldt voor het hebben van een (fietsen)berging.

5.4.5 Algemene wijzigingsregels

In het bestemmingsplan is een enkele wijzigingsbevoegdheid opgenomen voor het 'in geringe mate' kunnen wijzigen van het bestemmingsplan indien dit noodzakelijk is om het plan aan de bij uitmeting blijkende werkelijke toestand van het terrein aan te passen.

Hoofdstuk 6 Economische uitvoerbaarheid

6.1 Economische uitvoerbaarheid

Bij het opstellen van een nieuw bestemmingsplan dient op grond van artikel 3.1.6, lid 1, sub f van het Besluit ruimtelijke ordening onderzoek plaats te vinden naar de economische uitvoerbaarheid van het plan. Aan voorliggend bestemmingsplan zijn alleen kosten verbonden welke door de gemeente gedragen worden. De economische uitvoerbaarheid van dit bestemmingsplan kan daarom als aangetoond worden beschouwd.

6.2 Exploitatieplan

Op grond van artikel 6.12, eerste lid van de Wet ruimtelijke ordening (Wro) en artikel 6.2.1 van het besluit ruimtelijke ordening (Bro) dient, indien sprake is van één van de in artikel 6.2.1 van het Bro genoemde bouwactiviteiten, een exploitatieplan te worden vastgesteld. Een exploitatieplan heeft onder meer tot doel om te komen tot een adequaat publiekrechtelijk kostenverhaal, het realiseren van een goede inrichting van de openbare ruimte door middel van het stellen van locatie-eisen en het bieden van een goede grondslag om de verdeling van woningbouwcategorieën te ondersteunen.

De bouwplannen waarbij een exploitatieplan verplicht is, staan in artikel 6.2.1 van het Besluit ruimtelijke ordening benoemd. Indien een exploitatieplan vereist is moet de gemeenteraad het exploitatieplan tegelijk vaststellen met de planologische maatregel die het bouwen mogelijk maakt. Een gemeente behoeft geen exploitatieplan op te stellen indien het kostenverhaal al op een andere manier geregeld is ('anderszins verzekerd').

Voor een aantal adressen die in deze verzamelherziening zijn opgenomen, is reeds een planologische procedure gevoerd. Voor de overige wijzigingen is geen sprake van een categorie als bedoeld in artikel 6.2.1 van het Besluit ruimtelijke ordening. Gelet op het voorgaande hoeft dan ook geen exploitatieplan te worden vastgesteld.

Hoofdstuk 7 Maatschappelijke uitvoerbaarheid

Zienswijzen

Gelet op de aard van dit bestemmingsplan wordt geen mogelijkheid geboden om op grond van de gemeentelijke verordening een reactie op het voorontwerp te geven. Het wettelijk vooroverleg op grond van artikel 3.1.1 Bro heeft wel plaatsgevonden. De opmerkingen van de bestuurlijke partners zijn verwerkt in het ontwerpbestemmingsplan.

Het ontwerpbestemmingsplan 'Verzamelherziening 2023' heeft vanaf datum 2023 gedurende zes weken als ontwerp ter inzage gelegen. Tijdens deze periode heeft een ieder de mogelijkheid gehad om zienswijzen tegen het plan in te dienen. Naar aanleiding hiervan zijn aantal   zienswijzen ontvangen. De ingediende zienswijzen en de reactie hierop zijn opgenomen in de 'Nota van zienswijzen bestemmingsplan naam '.

Beroep

De vaststelling van het bestemmingsplan is op de in artikel 3.8, derde lid van de Wro voorgeschreven wijze bekend gemaakt. Belanghebbenden kunnen binnen de wettelijke beroepstermijn tegen het besluit tot vaststellen van het bestemmingsplan beroep instellen bij de Afdeling Bestuursrechtspraak van de Raad van State.

Bijlagen bij de toelichting